LA GUARDIA BALANCEADA

Acceso Barrio Riberas · Edificio de Guardia

2022
Acceso Barrio Riberas - Portada
Acceso Barrio Riberas - Plano 1
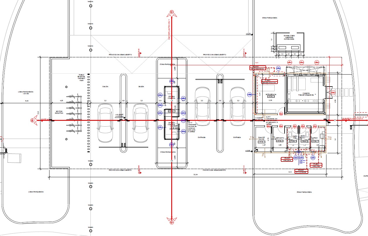
Acceso Barrio Riberas - Plano 2

El proyecto consistió en el diseño y construcción del acceso principal y edificio de guardia del Barrio Riberas, concebido bajo criterios de rapidez constructiva, eficiencia funcional y bajo mantenimiento.

La propuesta se resolvió principalmente mediante sistemas de construcción en seco, combinando estructura de steel frame con cubierta metálica. El conjunto se reviste casi en su totalidad con listones de WPC, aportando una estética contemporánea, durabilidad y una integración armónica con el entorno.

Acceso Barrio Riberas - Vista 1
Acceso Barrio Riberas - Vista 2

Como elemento distintivo, se proyectó una cubierta con terraza verde en toda su superficie, incorporando vegetación como parte del diseño arquitectónico y reforzando la relación del edificio con el paisaje circundante.

Desarrollado junto a MRS Construcciones, el proyecto permitió una ejecución ágil y precisa. Actualmente, el edificio funciona como punto de control y acceso para los residentes, mejorando la operatividad del barrio y las condiciones de trabajo del personal.

Una intervención donde tecnología constructiva, eficiencia y diseño se integran para dar respuesta a las necesidades del conjunto.

Acceso Barrio Riberas - Vista 3
Acceso Barrio Riberas - Vista 4